Arundel
Couldn't load pickup availability
Delivery and Shipping
Delivery and Shipping
Arundel log cabin has a large canopy and a separate storage room. Why not have a garden room to sit in and relax overlooking your garden. The storage room is the perfect size for keeping your bikes and lawnmower out of sight. This model comes standard with roof shingles.
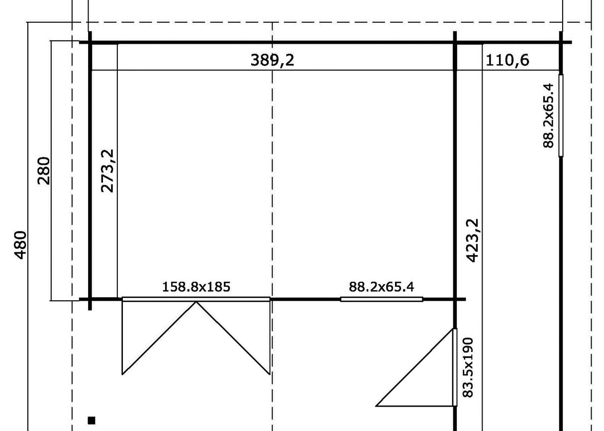
The Arundel Log Cabin offers generous and flexible space. It measures 5.1m by 4.3m. The cabin provides 21.30m² of interior floor area. Its height reaches 2.45m, fitting comfortably in most gardens. Sturdy 34mm logs form its solid walls. Although it lacks double glazing, the cabin retains warmth and strength.
- Solid 28mm floorboards support heavy use. The 18mm roof boards handle various weather conditions well. Double doors measuring 159 x 185cm give easy access. An extra single door (84 x 190cm) adds convenience. A 30cm roof overhang offers weather protection and charm. The Arundel Log Cabin makes a practical and attractive garden building.
-
Height2.45m
-
Dimension5.1m x 4.3m
-
Double Glazing
-
Wall Log Thickness
-
Roof Boards
-
Floor Boards
-
Floor Area
-
Roof Overhang
-
Door Size
Payment & Security
Payment methods
Your payment information is processed securely. We do not store credit card details nor have access to your credit card information.


